Status: Study 2018
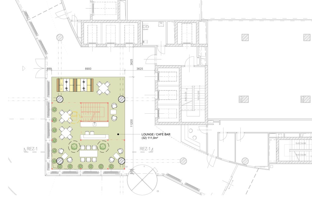
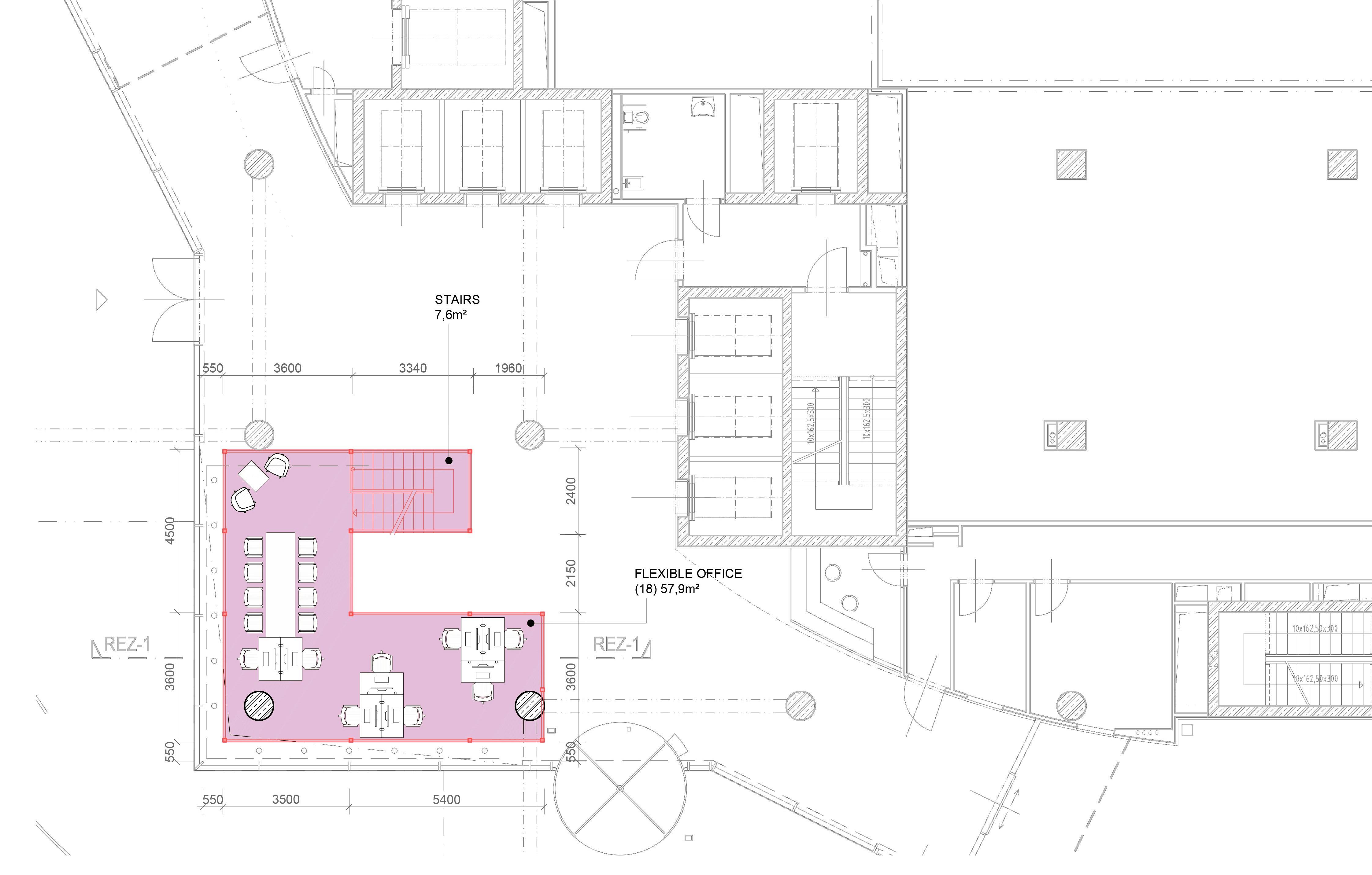
Function: Office coworking HUB
Area: 410 m² with expansion
Vortex of inclined steel rods generates surface layer around the core of triple level office spaces. The structure was planned to be constructed in a double-height lobby space in an office building in Bratislava wider city center. The individual floors are vertically connected by a dominant yellow spiral staircase. The structure can work separately as well as an architectural modul that can be incorporated in various vertically void spaces to spatially expand their functional areas.
Designed spaces serve as a vertical coworking HUB with its own reception, café, various hot desks, office booths, meeting zones and lounge spots.

Perspective




























You must be logged in to post a comment.