This project is the extension of the National gallery in Bratislava. It is the result of work at Laboratory of architecture [coordinator: Imro Vasko]. It focused on the theme: “Memory in architecture”.
The project deals with the ideas of expansion, penetration and overlap into the surrounding urban context. As a result, new public exhibition spaces are created and amplified circulation paths are incorporated. The project solves the lack of space for public activities with new areas in which the visitors become the exhibits themselves.

Site
National Gallery – view from the river
Slovak modernism – National Gallery
The composition of volumes recalls the memory of the former shapes – it creates new cantilevers of huge masses. The interplay of full and void spaces represents the universal dynamism of the structure and its opening to the city.
Levels diagram
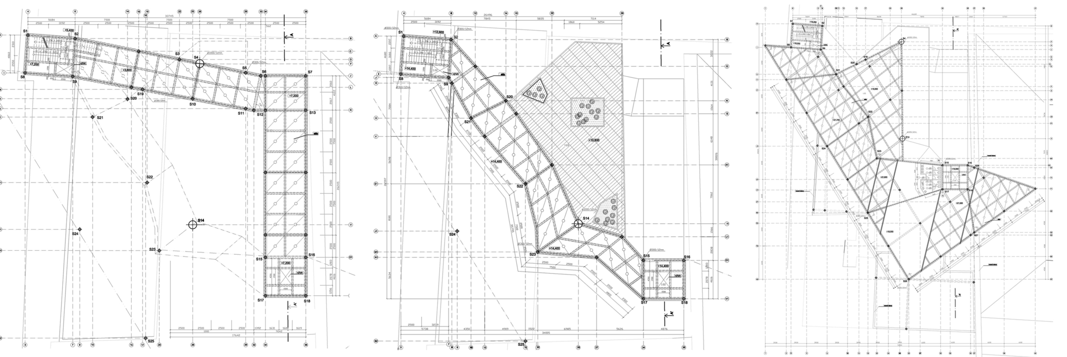
Structural drawings
The expansion is also the result of action and reaction, spatial interaction of volumes, interconnections and intersections. The new gallery is an expanded vertical street and an active urban labyrinth. Expanded gallery is as well the communicator.
Model II

































You must be logged in to post a comment.