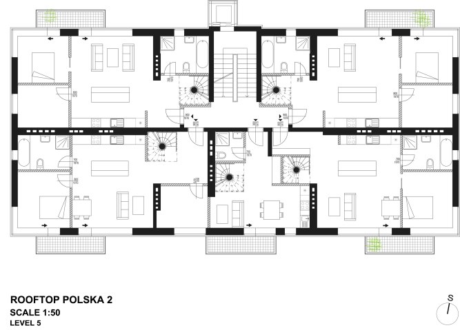
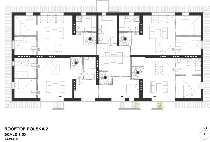
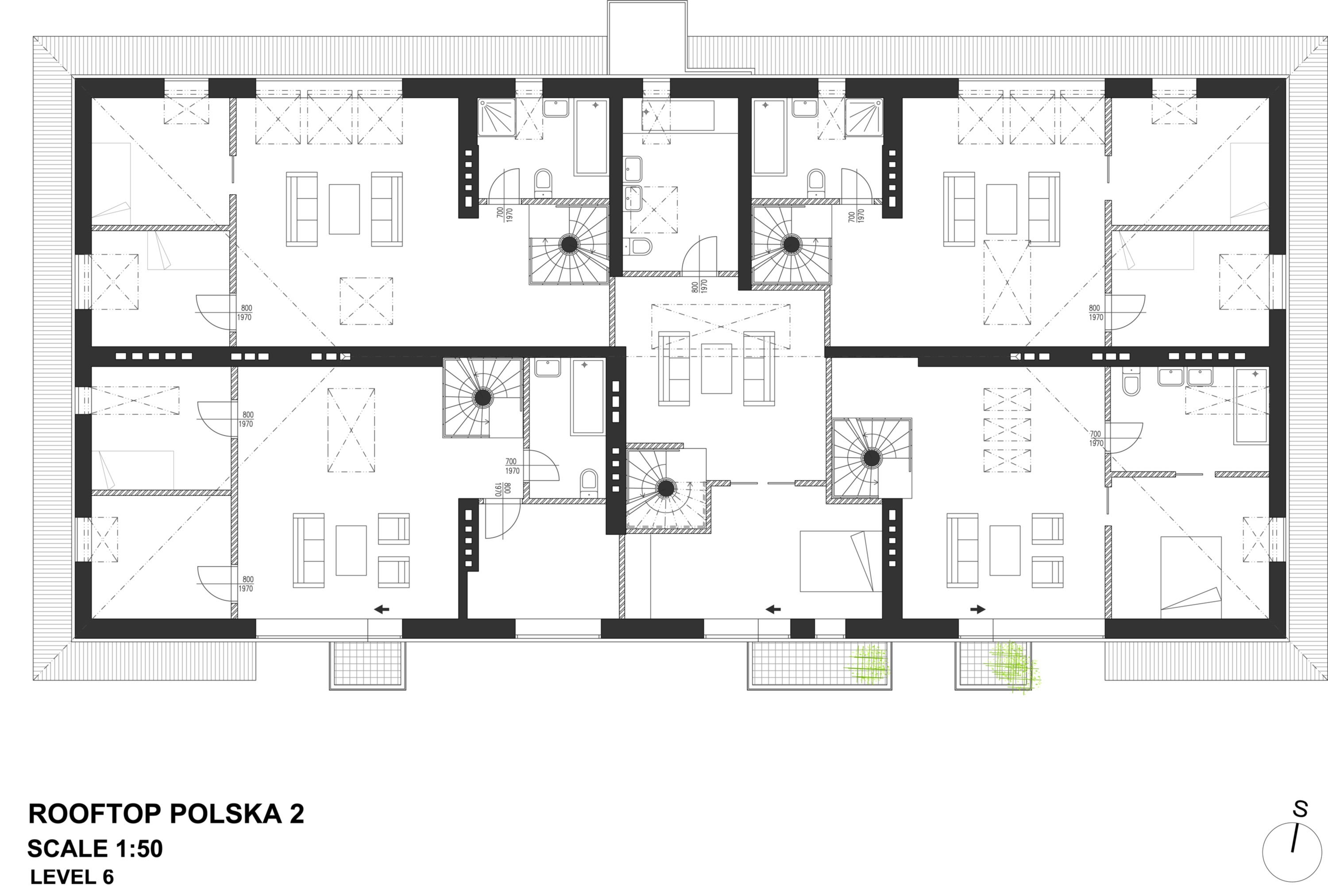
Program: (2+1) storey rooftop extension of 5 apartment units
Location: Polska
Area: 590 m2
Three-storey rooftop extension is designed to create additional residential spaces. The extension scheme consists of five spacious dwelling units of which two are two storey units t and one is three storey iunit with unique private terrace under the roof.
The regulation stated that the original roof has to be preserved. The architecture of extended levels is conceived in a way that if one imagines subtracting the original building structure (but preserves the roof), the extension with roof could function as one separate self-sustained architecture. At the same time, the consistency of old and new structure is maintained by selection of façade material. Original building façade is of dark paint. The rooftop extension façade is covered with dark stone cladding panels. Major inspiration of the architecture is the industrial movement and the visual of locomotive. Crucial design element is also the interplay of balconies and windows with contrasting white framing.
Existing construction
Existing construction + rooftop

Site






























You must be logged in to post a comment.